Get a quote
Call Us
0800 867 778
Email us
Visit us
24 Sir William Ave, East Tamaki, Auckland
ASK US FOR A QUOTE
Before filling out the quote form below, please read through the following information to help you fill out the form accurately.
STEP ONE - PLEASE EMAIL US PHOTOS
- Stand in the middle of the kitchen/laundry - take a photo of every side.
- Accurate photos will provide details on which edges to finish, what to lookout for with plumbing, gas, tiles / splash back and help us plan which is the best way to install.
- Email them to: sales@contoursurfaces.co.nz with your name and project details as reference.
MEASUREMENTS
For us to work out a price we need measurements to work out the quantity of materials we will need. Precise measurements are not so important to start with - 10-20mm will not make much difference. Accurate measurements can be finalised later. We recommend including our Digital Template service with your order to ensure the perfect fit of your benchtop.
STEP TWO: Send us your measurements.
There are TWO ways to give us your benchtop measurements:
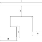
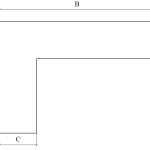
OPTION ONE: Use our shape plans:
- Click on a shape plan below to open it in a new window.
- Print the shape plan and write the dimensions on it.
- Scan or take a photo of the plan and email to us.
- Remember to write the symbols for each edge to indicate if it is “Visible” or “Not Visible / Wall”.
If an edge is partially-seen, use “Visible” but place a measurement mark on the edge to show how much of the edge is seen.
OPTION TWO: Write the dimensions in the quote form message area:
- Write what shape bench you have, for example “Straight”, “L-Shape”, “C-Shape”, “G-Shape”.
- Then for each edge, write the dimensions and whether it is visible. For example, L1 = 2400 (Wall), W1 = 610 (Visible).
- Make sure to draw or tell us which benchtop will need a sink or hob cut-out.
STEP THREE: Fill out the quote form below with as many details as you can.
CHOOSE YOUR BENCHTOP TYPE
- Laminate
- Ceramic
- Engineered Stone
- Solid Surface
CHOOSE YOUR BENCHTOP THICKNESS
Our standard benchtop thickness for each benchtop type is:
- Laminate: 36mm (31mm is also possible, although 36mm is recommended)
- Engineered Stone: 20mm
If you have tiles or a splashback you are keeping, we will manufacture to match the thickness.
If you are replacing the tiles or splashback, then other thicknesses can be offered.
Note: Opting for thicknesses other than our standard increases the cost. Let us know if you need a non-standard thickness so we can price it for you.
EMAIL ANY PLANS AND PHOTOS TO US
Please email any attachments, plans, photos and measurements to:
sales@contoursurfaces.co.nz
Include your name and project details in the email.



